
Our team provided structural engineering services for the unique Vertigo Restaurant project at the iconic Brisbane Powerhouse. Working closely with the design team, we supported the development of the concept from its early stages, helping to realise a bold vision that integrates dining with height and experience. The project involved carefully adapting the heritage-listed structure to accommodate new loads and ensure safety, while preserving its architectural integrity. Our innovative structural solutions enabled the successful transformation of the space into a dramatic, elevated dining venue that enhances the Powerhouse’s cultural offering.

DTA Structural Engineering was responsible for production of the concept drawings, structural engineering and certification of the various components of the new adventure climb and group of activities

DTA Structural Engineering provides a full range of services to Australian Tanks including drafting, engineering and certification. The flexible, collaborative approach has resulted in the development of a range of new and exciting products

DTA Structural Engineering has provided design and detailing of formwork for projects such as the Cunningham Gap project.

DTA Structural Engineering provides a full range of services to TNN Engineering including production of structural and marketing drawings, design of formwork moulds and certification.

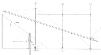
DTA Structural Engineering has provided design and detailing of complicated conveyor trestle foundations, retaining walls and other elements at the Blair Athol Mine

DTA Structural Engineering provided modelling and drafting for the series of construction protection nets on the West Gate Tunnel Project in Melbourne. Drawings and modelling had to comply with strict project BIM standards

DTA Structural Engineering provided design and Revit modelling services for the steelwork packages (roofs, walls and awnings) for the Performing Arts Building and B5 buildings

DTA Structural Engineering provided various temporary works support to McIlwain Civil on the Veloway project in Tarragindi/Holland Park including structural assessments of below ground infrastructure for piling rig and crane traversal, lifting, precast terminal design, temporary support and dilapidation reports

DTA Structural Engineering has provided modelling and drafting for the complicated, multi-million dollar residence at Byron Bay